8:“房间疏散门直通安全出口”的应用原则—《建筑防火·底层逻辑》系列专题
发布时间:2026-02-03

石峥嵘:《建筑防火·底层逻辑》系列专题——安全疏散-第8部分:“房间疏散门直通安全出口”的应用原则。房间疏散门应直通安全出口,或通过疏散走道直达安全出口。
基于第一性原理,深入剖析建筑防火和消防设施领域的本质原理和底层规律!
今天,我们讲解安全疏散专题的第8部分:“房间疏散门直通安全出口”的应用原则。人员从室内房间疏散,应确保风险逐级递减,不应采用嵌套(穿套)设置的方式。确因功能需要,仅可以嵌套(穿套)设置一级相对面积较小的房间,禁止连环嵌套。
一、房间疏散门应直通安全出口
疏散路径风险递减原则:疏散路径的设计需遵循 “危险区域→次危险区域→室内安全区域→室外安全区域” 的风险递减原则,这是安全疏散设计的核心准则(参考专题:火灾风险等级与阶段疏散策略)。基于此,房间疏散门的设置需满足“直通安全出口”或“通过疏散走道直达安全出口”的要求,不应在相同火灾风险等级的房间中转换。
《建筑防火通用规范》GB 55037-2022 第7.1.2条规定:“房间疏散门应直接通向安全出口,不应经过其他房间”。本条规定的底层是“疏散路径风险递减原则”,具体实施要求为:
房间疏散门直通安全出口;
或通过疏散走道直达安全出口。
二、房间嵌套(穿套)设置不应许可
室内房间属于危险区域,一旦发生火灾,人员应迅速疏散至相对安全的次危险区域(疏散走道),通过疏散走道疏散至安全出口【图示1】。

【图示1】人员通过疏散走道疏散至安全出口
当室内房间采用嵌套(穿套)设置方式时,内部房间一旦发生火灾,必须经过另一个危险区域才能到达疏散走道或安全出口,存在一定风险【图示2-(a)】。
关键是,如果外部房间起火,将直接阻断内部房间的安全疏散【图示2-(b)】。因此,这种嵌套(穿套)设置的方式不应许可。
注:特殊功能场所可根据相关标准要求另行确定。

【图示2】嵌套(穿套)设置房间起火时的人员疏散
三、确因功能需要,允许设置一级嵌套房间
确因功能需要(如需在房间内设置设备配套空间、辅助功能用房等),允许设置一级嵌套房间,需满足以下限制条件:
(1)仅允许一级嵌套:即采用“外层房间嵌套内层小房间”的单层嵌套,禁止“多级嵌套”;
(2)内层嵌套房间的面积应相对较小,避免因空间规模过大导致疏散效率降低;
(3)内层房间的疏散距离(从房间内任一点至疏散门或安全出口的距离)需符合现行标准要求,确保紧急情况下人员快速撤离。
注:特殊功能场所可根据相关标准要求另行确定。
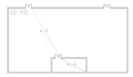
示例1:【图示3】所示的公共建筑,室内最远点至疏散门的距离L1+L2,应满足最大允许疏散距离要求。参见《建筑设计防火规范》GB50016-2014第5.5.17条。

【图示3】设置一级嵌套房间的公共建筑
示例2:【图示4】所示的厂房车间或汽车库,室内最远点至安全出口的距离L1+L2,应满足最大允许疏散距离要求。参见《建筑设计防火规范》GB50016-2014第3.7.4条。

【图示4】设置一级嵌套房间的厂房车间或汽车库
四、总结
至此,我们完成了本专题讲解。
本专题系统阐述了“房间疏散门直通安全出口”的应用原则。其根本依据是“危险区域→次危险区域→室内安全区域→室外安全区域”的疏散路径风险递减准则。
房间不应采用嵌套(穿套)设置方式,以防外部房间起火时阻断内部房间的疏散路径。
确需在房间内设置设备配套空间或辅助功能用房时,允许“单层嵌套”,但应严格满足三大限制条件:(1)仅限一级嵌套;(2)内层房间面积相对较小;(3)内层房间疏散距离符合规范要求。






